래미안 원베일리 일반분양 청약 확인하기
래미안 원베일리
현재 서울의 로또 분양이라고 불리는
서초 래미안 원베일리는 6월 17일부터
일반분양이 진행되고 있습니다.


래미안 원베일리 일반분양 공급수는
224세대 이며,
투기과열지구 분양가 9억 초과 물량으로
특별공급 없이 현재 1순위부터 청약이 진행되고 있습니다.
특히 이번 래미안 원베일리는
주변의 아파트 아크로리버파크,래미안 퍼스티지 등이
평당 1억원을 호가하는 중인데,
원베일리는 평당 5천만원 수준으로
당첨만 되면 큰 시세차익을 노릴수 있을것으로
전망이 되고 있습니다.
래미안 원베일리 일반분양 정보

-서울시 서초구 반포동 1-1번지 ( 래미안 원베일리 주소)
-지하4층, 지상 35층 23개동 총 2,990세대 중 일반공급 224세대
-2023년 8월 입주예정
래미안 원베일리 1순위 청약조건
- 입주자모집공고일 현재 서울,경기도,인천에 거주하는 세대주
- 무주택 및 1주택을 소유한 세대에 속한 사람
- 과거 5년이내에 다른 주택에 당첨된 사실이 없는 사람
- 청약통장 가입 후 2년 이상 및 지역별 예치금액 이상인 자
래미안 원베일리 공급주택형은 모두 전용면적 85m이하 주택입니다.


래미안 원베일리는 작년 지자체를 통해
입주자모집공고 승인을 신청했기 때문에
2월에 개정된 주택법 시행령을 적용받지 않게 됩니다.
래미안 원베일리 단지여건 및 유의사항





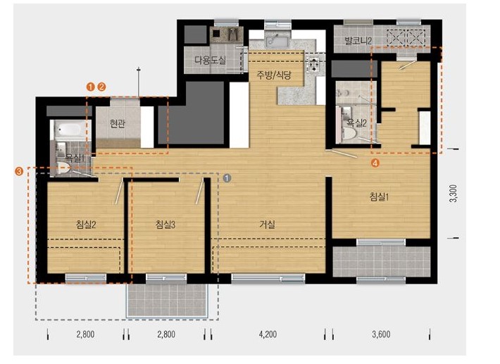
래미안 원베일리 평면도







래미안 원베일리 사이버 모델하우스
https://www.raemian.co.kr/event/sale/onebailey/emodel/living/59A/vtour/tour.html
래미안 원베일리
www.raemian.co.kr
래미안 원베일리 청약신청 홈페이지
https://www.raemian.co.kr/main.do?src=image&kw=000010